«Эскизный проект» – строительный термин, ранее означавший стадию проектирования («Э»). Документация разрабатывалась для формирования и согласования общей концепции объекта. Выполнение эскизного проекта предшествовало разработке архитектурного («А») и/или строительного («С») проектов. Такой порядок позволял определить технико-экономические показатели (ТЭП), объемно-планировочное решение, привязку на местности. С изменением технических нормативных правовых актов (ТНПА) и законодательства РБ стадия по разработке эскизного проекта была упразднена. На сегодняшний день с выходом:
- Указа Президента № 46 от 31.01.2025 г. «Об особенностях строительства и приемки объектов в эксплуатацию»;
- положения о составе и порядке согласования эскизного проекта, утвержденного постановлением Совмина РБ № 242 от 30.04.2025 г.;
- постановления Совмина РБ № 561 от 10.10.2025 г. «Об изменении постановлений Совмина РБ № 486 от 27.08.2021 г. и № 242 от 30.04.2025 г.»;
- постановления МАиС РБ № 114 от 10.10.2025 г. «Об утверждении административных процедур».
Понятие «эскизный проект», его состав и порядок согласования снова определены
Что такое эскизный проект объекта строительства?
Положением № 242 обозначены понятие эскизного проекта, требования к его составу и порядку согласования. Согласно нормативному правовому акту (НПА) это проект, который:
- включает принципиальные конструктивные и архитектурно-планировочные решения для получения общего представления о параметрах и функциональном назначении объекта строительства;
- служит базой для последующей разработки чертежей;
- содержит основные ТЭП строительного объекта.
При этом важно учитывать, что эскизный проект разрабатывается только по объектам:
- 4 и 5 класса сложности, обозначенным Указом № 46 от 31.01.2025 г.;
- сотовой связи и необходимой инфраструктуры согласно Указу № 301 от 11.08.2025 г.;
- относящимся к первоочередным при параллельном одностадийном проектировании и строительстве.
Как самостоятельная стадия эскизный проект по-прежнему не выделяется. Положением № 1476 от 08.10.2008 г., пункт 31 регламентируется одно- и двухстадийное проектирование: «С» или «А+С». Вместе с тем составление эскизного проекта является необходимым этапом для реализации обозначенных выше объектов. Документация имеет четкую структуру и требует согласования в соответствии с регламентом административных процедур. Согласованные документы эскизного проекта выступают базой для разработки чертежей или строительного проекта. При этом они не требуют проведения экспертизы. Стоимость эскизного проекта определяется индивидуально с учетом состава и степени проработки проектной документации. Типовые и дополнительные требования заказчика к документам указываются в задании на проектирование эскизного проекта
Состав эскизного проекта в соответствии с положением № 242
Согласно положению № 242 эскизный проект строительства объекта включает текстовую и графическую части. В частности:
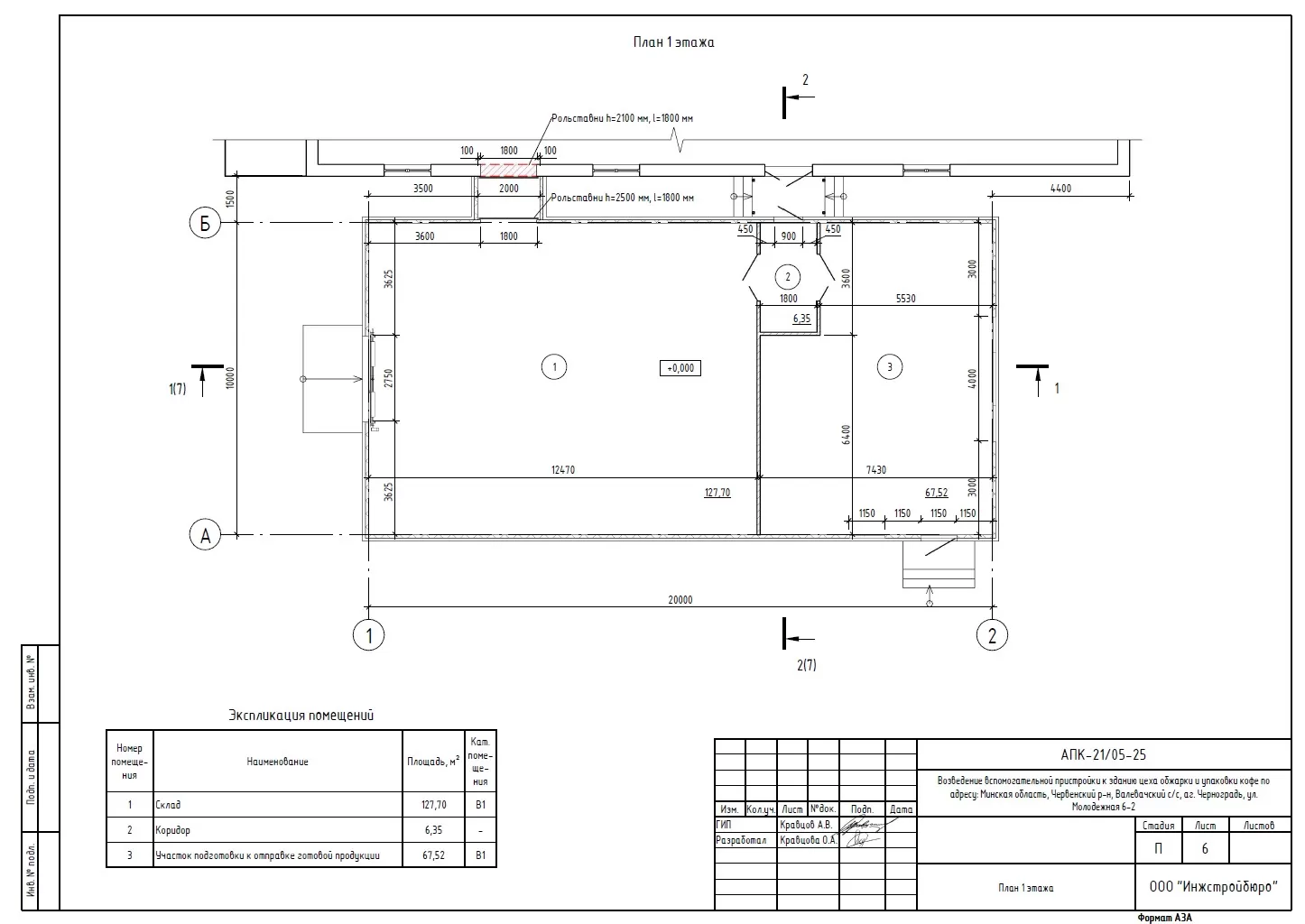
- схему размещения строительного объекта – выполняется на топооснове в масштабе 1:500 либо 1:1000 со степенью детализации, установленной положением;
- план объекта – эскизный проект здания или сооружения должен содержать данные о его основных физических размерах;
- графические материалы – должны отображать особенности архитектурного и объемно-пространственного решения;
- пояснительную записку – эскизный проект объекта включает его основополагающие характеристики: класс сложности, физические размеры, этажность, вместимость, функциональное назначение и пр.
В целом выполнение эскизного проекта направлено на предоставление ясной концепции и масштабов будущего объекта.
В каких еще случаях требуется изготовление эскизных проектов?
Помимо перечисленных ранее, понятие «эскиз»/«эскизный проект» встречается в следующих нормативных актах:
- строительный Кодекс, пункт 1.3, разъясняющий термин «архитектурно-планировочная концепции объекта строительства»;
- ГОСТ 2.119-2013 «Единая система конструкторской документации. Эскизный проект»;
- ГОСТ 2.103-2013 «Единая система конструкторской документации. Стадии разработки».
В Кодексе под архитектурно-планировочной концепцией понимается эскиз, разрабатываемый в составе предпроектной (предынвестиционной) документации. Эскизный документ дает представление о местоположении, ТЭПе, физических и эстетических качествах строительного объекта. Архитектурно-планировочной концепция – важная часть материалов обоснования инвестиций.
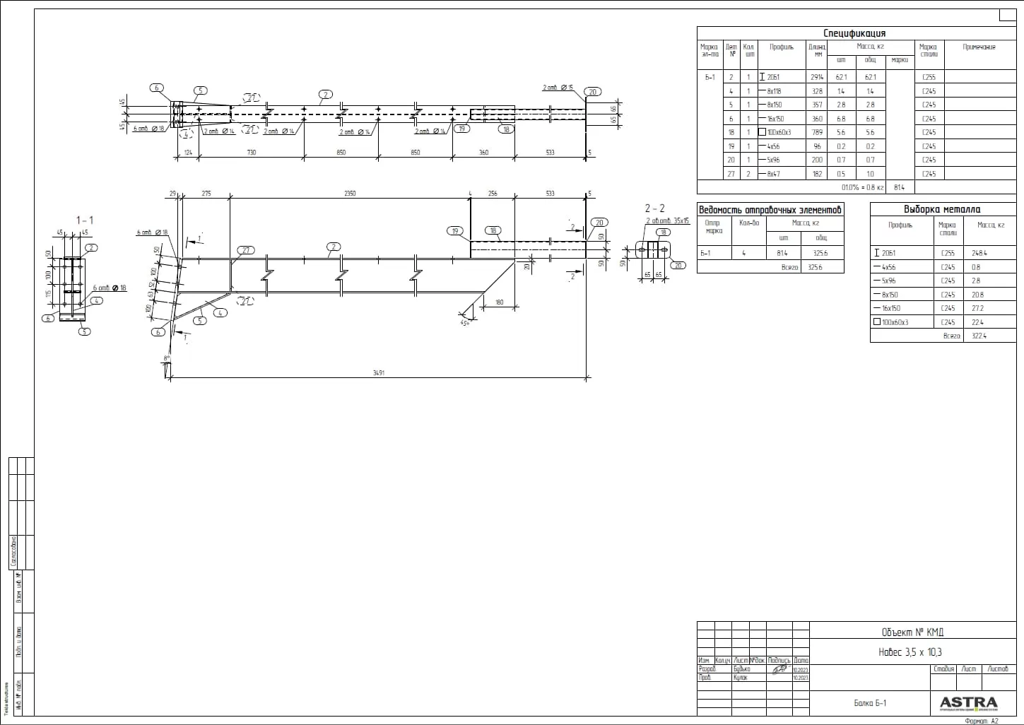
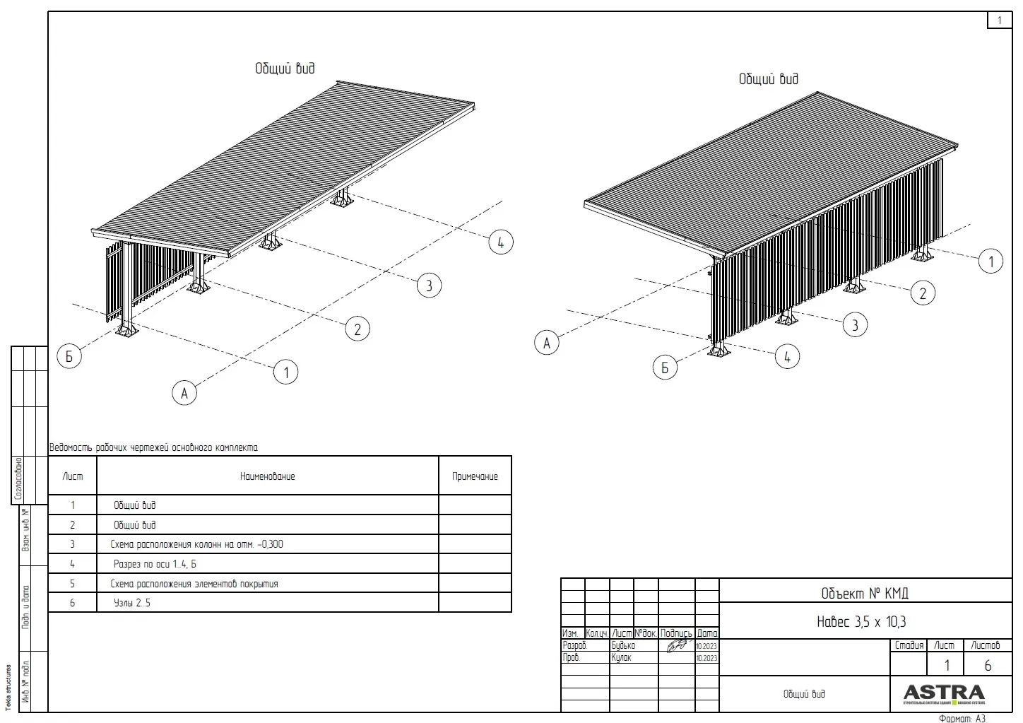
Эскизный проект по ГОСТу выполняют на промышленные заводские изделия. В этом случае документ является стадией разработки проектной конструкторской документации (КД). Эскизный проект КД разрабатывается после рассмотрения и утверждения технического предложения. Он позволяет получить полное представление о конструкции: принципе работы, физических размерах. Эскизный проект изделия согласовывается и утверждается в установленном порядке. На его основе выполняют технический проект либо рабочую КД. Как правило, отдельное техническое задание на эскизный проект не составляют. Требования указываются в общем ТЗ, включая форму предоставления (бумажная/электронная), варианты разработки эскизного проекта и пр. Поэтому стоимость таких работ индивидуальна.
Разработка эскизного проекта в Минске
Минский завод металлоконструкций ASTRA оказывает услуги по эскизному проектированию. У нас можно заказать:
- эскизный проект конструкции с выполнением расчета, предложением вариантов и определением, сколько стоит металлоизделие; разработка документации на стадии «Эскизный проект» ведется в точном соответствии с действующими нормативными актами и утвержденным техническим заданием;
- эскизный проект здания и сооружения 4 и 5 класса сложности, а также комплект чертежей согласно требованиям Указа № 46 и положения № 242.
Эскизно-технический проект на металлические изделия и эскизный проект строительства объекта разрабатываются проектной группой завода. Это профильные специалисты с опытом работы в области конструирования и проектирования. Мы предлагаем детально продуманные решения с предоставлением эскизного проекта по цене, зафиксированной договором.
Кроме эскизного варианта проекта, наша компания выполняет разработку объектов на стадии «С». При этом специалисты завода:
- рассчитывают фундаменты и металлоконструкции в соответствии с утвержденным объемно-планировочным решением;
- защищают проектные решения в госстройэкспертизе (при ее проведении);
- разрабатывают деталировочные чертежи;
- изготавливают и монтируют металлокаркас на стройплощадке.
Вы также можете купить готовый проект. Это позволит сразу определиться с ценой объекта и уменьшить общие сроки строительства. Чтобы заказать строительный или эскизный проект, узнать расценки, воспользуйтесь формой внизу страницы. Отвечаем предметно и быстро.